BLOG ブログ

★ ご 成 約 ★                                  【東根市本丸北二丁目】                                                                                         中古住宅 平屋(築9年)                                              土地:227坪 建物:19坪

  • 所在地    山形県東根市本丸北二丁目
  • 土地面積   750.80㎡ (227.11坪) 私道負担面積なし
  • 地目     宅地
  • 用途地域   非線引き
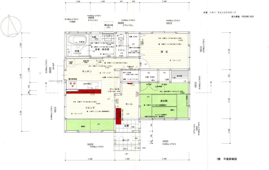
  • 建物面積   62.93㎡ (19.03坪)
  • 建物構造   木造合金メッキ鋼板ぶき平家建
  • 築年月    平成26年6月(2014年6月)
  • 入居可能年月 引渡し応相談
  • 取引態様   一般媒介
  • 販売価格   ★ ご 成 約 ★
  • 主な設備 特徴等

・2LDK ・IHクッキングヒーター ・トイレ ・ウッドデッキ ・駐車場アスファルト敷及び砕石敷 ・玄関アプローチ石畳仕様 ・外物置 

平屋の木造住宅。オール電化の2LDK。和室と洋室を完備。200坪以上の宅地で、お庭や菜園も楽しめます。駐車スペースも十分です。閑静な居住環境で緑に囲まれたスローライフをどうぞ。引渡し後すぐにお住まいになれます。

〈 学区と距離 〉

  • 小学区・・・東根小学校    700m(徒歩9分)
  • 中学区・・・東根第一中学校 1300m(徒歩17分)

〈 交通の利便 主な施設までの距離 〉

  • JR東根駅まで      2000m (徒歩25分)
  • 東根市役所まで     2400m (徒歩30分)
  • 大型スーパーまで    2000m (徒歩25分)
  • コンビニまで      1600m (徒歩20分)

※内覧が可能です。(事前にご予約下さい)

掲載日:2022/10/11 次回の更新予定日:2022/1/10